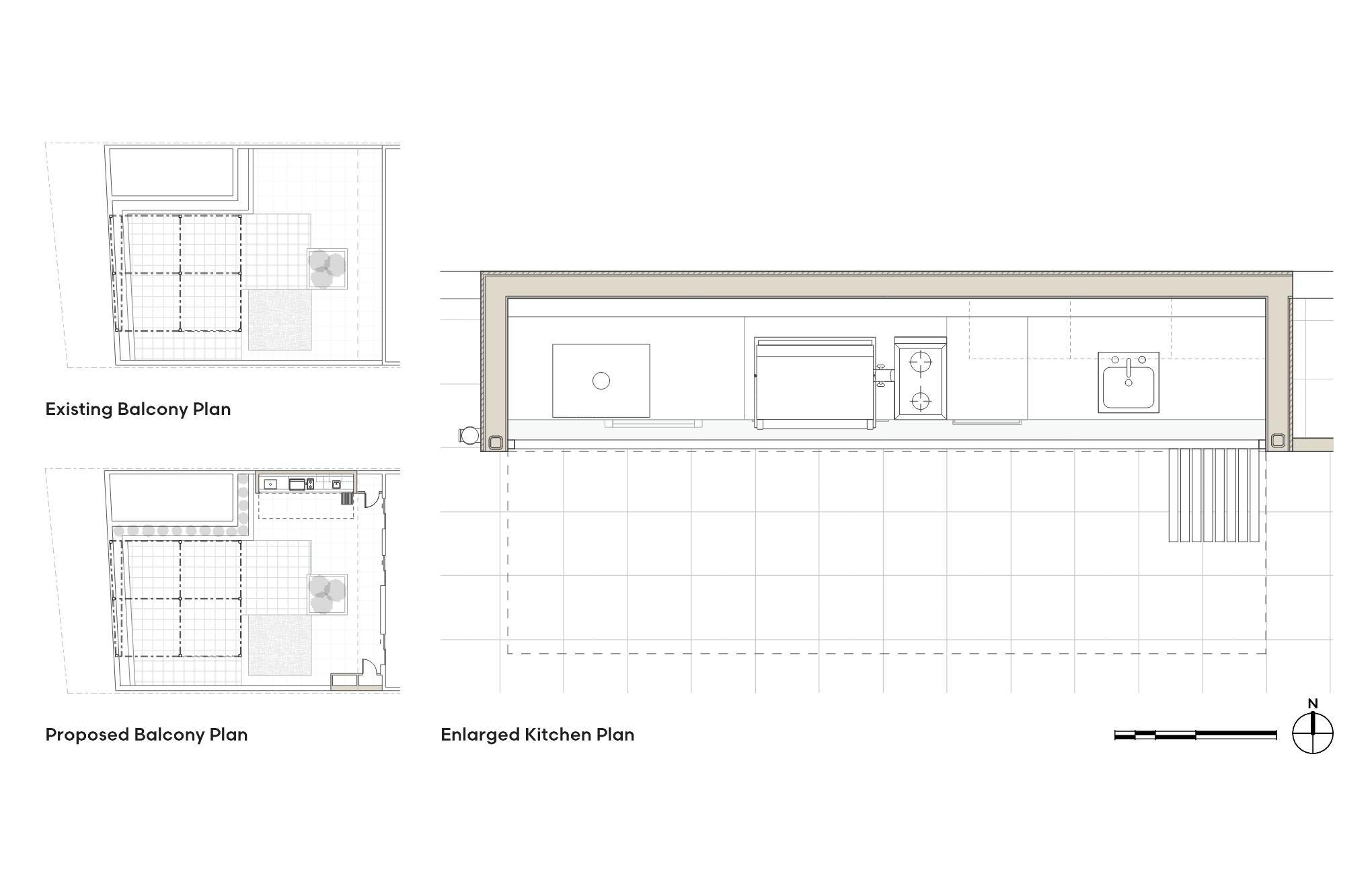
This bespoke outdoor kitchen and enclosure in Gold Coast relates visually to a previous roof deck addition to create a unified set of spaces for entertaining. The design of this project serves as a counterpoint to the existing pergola through its combination of solid elements with transparent folding doors and custom millwork details. The rooftop structure serves as a base for the outdoor space to provide protection from the elements while maintaining open views of the surroundings. In collaboration with interior designer, Xced Design Build, the design team worked together to create highly specific custom cabinetry, concealed appliances, and ambient lighting systems which create a smooth transition between indoor and outdoor living areas. The new social area provides a sophisticated gathering space which completes the home’s sequence of social zones while improving its functionality.
Project Information
Client: Confidential
General Contractor: FCI Construction
Interior Designer: Xced Design Build
Size: 200 SF Addition to Residence
Team: Josh Mings, Katia Astudillo




