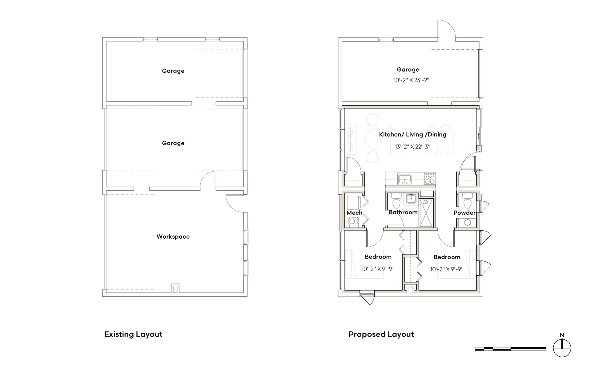
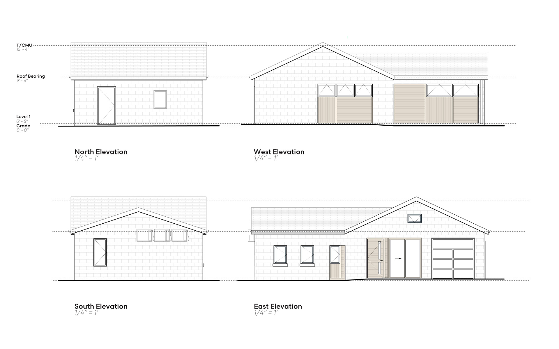
An existing garage gets a new life as a two-bedroom, one-and-a-half bathroom ADU Adaptive Reuse in Evanston, replacing parking with much-needed housing. Our client approached us with a desire to turn their existing garage, built by a past owner but not required for parking by the client, into new housing for family or potential rental. Utilizing the existing garage’s structure, we crafted a tripartite approach: creating an insulated box within the garage to house the ADU, opening new openings from the existing garage doors, and separating the program into bands. The Living/Dining/Kitchen area receives natural light from new openings at the former garage doors, serviced by a band containing storage, kitchen equipment, mechanical/utilities, and both the main bathroom and powder room. This service band separates living spaces from the bedrooms, allowing for privacy. Natural light and air fill the new ADU, reclaiming parking spaces for housing.
Project Information
Client: Confidential
General Contractor: TBD
MEP Consultant: Allen + Shariff
Size: 1,075 SF Adaptive Reuse











