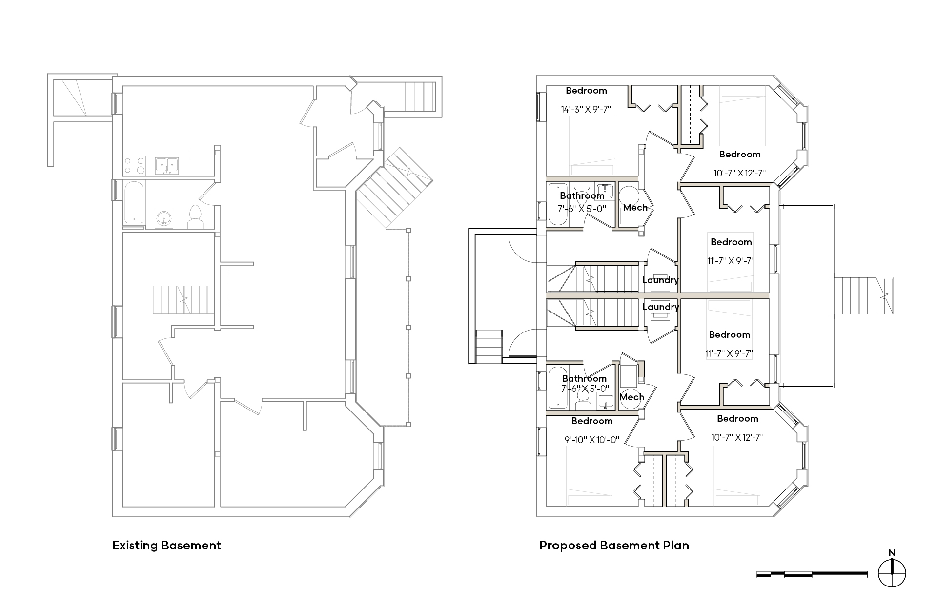
A coach house with a storied history from the 1880s, vacant for years but with good bones, gets a revitalized life as two affordable duplex condo units in our upcoming renovation with Here to Stay Community Land Trust. On the same property as the first condos under a Community Land Trust in Illinois, the gut renovation will add two additional three-bedroom, one-and-three-quarter-bath duplex condo units for affordable homeownership. Taking advantage of the garden-unit-esque basement level, we created a private lower level with bedrooms, laundry, mechanicals, and bathrooms. This allows the upper level, with its existing built-in millwork and historic trim, to maintain its character, being updated with new kitchens, living rooms, and dining areas. Doing so allows the coach house to serve as housing for families once again.
Project Information
Client: Here to Stay Community Land Trust
General Contractor: Chicago Metropolitan Construction
Civil Engineer: CAGE Engineering
Size: 2,600 SF Gut Renovation creating Two Duplex Units
Team: Josh Mings, Katia Astudillo








